En Alquiler
Alquiler 3 ambientes amplio al frente con balcon - Villa Lugano
Código: 196915

Av. Castañares 5800, Villa Lugano, Capital Federal, Argentina.

$750.000

Departamento
Compartir esta Propiedad

Descripción de la Propiedad

En alquiler departamento 3 ambientes con amenities.

Ubicación a 2 cuadras de autopista Dellepiane a Ezeiza y al centro, a 1 cuadra de Murguiondo, a 4 cuadras del centro comercial estación Villa Lugano, rapido acceso a Av. Gral Paz. Multiples lineas de colectivo y colegios en la zona.

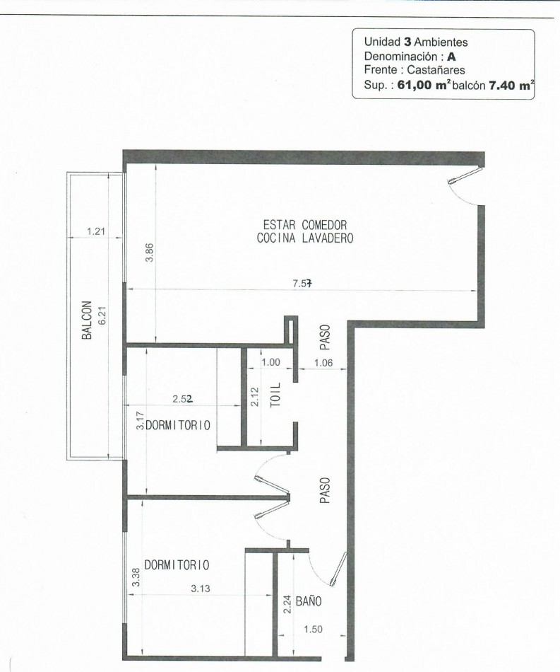
En cuarto piso al frente por ascensor. Amplio Living comedor con cocina integrada con muebles altos y bajos y conexión para lava ropas, balcón corrido al frente, toilette, 2 dormitorios con placard, y baño completo. Aire acondicionado en el living comedor.

Antigüedad 3 años.
Superficie cubierta 61m2, balcón 7.40m2

Edificio con SUM con parrilla y terraza de uso común.

Expensas: $230.000.- (aprox.)

Ajuste: TRIMESTRAL con índice IPC del Indec, contrato a 2 años.

Av. Castañares 5800 .- Villa Lugano

Comercializa: BARBERIS PROPIEDADES
Matrícula CUCICBA N°6929

ADVERTENCIA IMPORTANTE: Los montos especificados de expensas responden a una declaración del propietario el día que fue visitada la propiedad por nuestro personal, habitualmente el mismo NO esta actualizado. Verificar el monto actualizado previo al alquiler/compra de la propiedad. Las medidas son aproximadas, a solo efecto orientativo.

"Para los casos de alquiler de vivienda, el monto máximo de comisión que se le puede requerir a los propietarios será el equivalente al cuatro con quince centésimos por ciento (4,15%) del valor total del respectivo contrato. Se encuentra prohibido cobrar a los inquilinos que sean personas físicas comisiones inmobiliarias y gastos de gestoría de informes".
Apto para personas con movilidad reducida - Ley 5115.

Mas detalles
Expensas: $ 230000
  • Antigüedad 3 años